广州301平米以上现代简约风格案例

来源:名匠装饰|更新时间:2019-12-24
楼盘名称
所在城市广州市
案例风格现代简约风格
案例面积301平米以上
案例户型别墅
案例设计师甘绿良
2017年“华厦奖”国际空间环境艺术设计大赛参赛作品!


一种清雅居家生活向往,清新逸致的生活状态,源于历史文人骚客身处盛世之下所衍生出来的状态。本空间以“逸”为设计主题,追求这种居家状态,让主人居住在空间中,得到一种源于精神的生活享受。


本空间更为年轻、创意和国际性,增加了空间的结构穿插和自然光线的引入。青嫩极简而具有个性的识别度,却是将古时文人墨客心中的胸臆,和主人年轻才华的外放特征所连接!


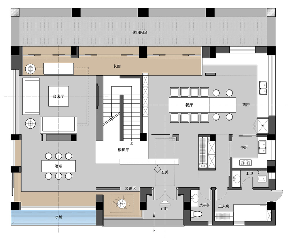
现代极简风格别墅装修设计效果图-迎江"逸"墅·碧桂园-别墅装修设计一楼平面图

广州301平米以上别墅现代简约风格装修效果图


别墅装修设计一楼平面图


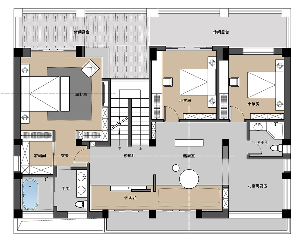
现代极简风格别墅装修设计效果图-迎江"逸"墅·碧桂园-别墅装修设计二楼平面图

广州301平米以上别墅现代简约风格装修效果图

别墅装修设计二楼平面图


现代极简风格别墅装修设计效果图-迎江"逸"墅·碧桂园-别墅装修设计二楼楼梯厅

广州301平米以上别墅现代简约风格装修效果图


别墅装修设计二楼楼梯厅


现代极简风格别墅装修设计效果图-迎江"逸"墅·碧桂园-别墅装修设计二楼休闲厅

广州301平米以上别墅现代简约风格装修效果图


别墅装修设计二楼休闲厅


现代极简风格别墅装修设计效果图-迎江"逸"墅·碧桂园-别墅装修设计二楼儿童玩乐区

广州301平米以上别墅现代简约风格装修效果图


别墅装修设计二楼儿童玩乐区


现代极简风格别墅装修设计效果图-迎江"逸"墅·碧桂园-别墅装修设计二楼主卧室

广州301平米以上别墅现代简约风格装修效果图


别墅装修设计二楼主卧室


现代极简风格别墅装修设计效果图-迎江"逸"墅·碧桂园-别墅装修设计一楼玄关

广州301平米以上别墅现代简约风格装修效果图


别墅装修设计一楼玄关


现代极简风格别墅装修设计效果图-迎江"逸"墅·碧桂园-别墅装修设计一楼楼梯厅

广州301平米以上别墅现代简约风格装修效果图


别墅装修设计一楼楼梯厅


现代极简风格别墅装修设计效果图-迎江"逸"墅·碧桂园-别墅装修设计一楼酒吧

广州301平米以上别墅现代简约风格装修效果图


别墅装修设计一楼酒吧


现代极简风格别墅装修设计效果图-迎江"逸"墅·碧桂园-别墅装修设计一楼客厅

广州301平米以上别墅现代简约风格装修效果图


别墅装修设计一楼客厅


现代极简风格别墅装修设计效果图-迎江"逸"墅·碧桂园-别墅装修设计一楼客厅

广州301平米以上别墅现代简约风格装修效果图


别墅装修设计一楼客厅


现代极简风格别墅装修设计效果图-迎江"逸"墅·碧桂园-别墅餐厅装修设计

广州301平米以上别墅现代简约风格装修效果图


别墅餐厅装修设计


现代极简风格别墅装修设计效果图-迎江"逸"墅·碧桂园-别墅餐厅装修设计

广州301平米以上别墅现代简约风格装修效果图


别墅餐厅装修设计


现代极简风格别墅装修设计效果图-迎江"逸"墅·碧桂园-别墅走廊装修设计

广州301平米以上别墅现代简约风格装修效果图


别墅走廊装修设计


本案例设计师
甘绿良

甘绿良设计总监 所属公司:广州公司 从业经验:10年以上 案例作品:10套

百万家庭信赖之选

    立即获取装修报价 您所填写的信息将严格保密,请放心填写!

    推荐案例

    已有7035人获取装修报价

    点击预约

    400-808-6012